L'élévateur vertical à mât unique est une nacelle légère en alliage d'aluminium conçue pour être utilisée par une seule personne. Elle se caractérise par un levage électrique en douceur jusqu'à 12 mètres, une taille compacte facilitant le passage des portes et des ascenseurs, et un fonctionnement silencieux. Adapté aux travaux d'intérieur et d'extérieur, il est idéal pour la maintenance, l'installation, le remplacement des éclairages et les tâches d'entreposage.


Spécifications
| Modèle | QYLH4-100-1 | GTWY06-1 | GTWY08-1 | GTWY10-1 | GTWY06-1mini | GTWY04-1mini |
| [A]Hauteur de travail maximale (m) | 6 | 8 | 10 | 12 | 8 | 6 |
| [B]Hauteur maximale de la plate-forme (m) | 4 | 6 | 8 | 10 | 6 | 4 |
| Capacité de levage (kg) | 150 | 130 | 150 | |||
| [L*L*H]Dimensions de la plate-forme (mm) | 650*650*1100 | 650*500*1000 | ||||
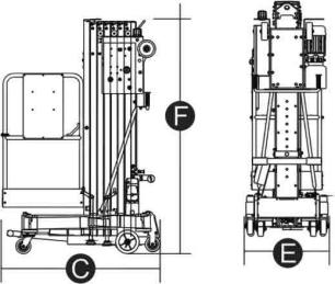
| [C*E*F]Dimensions totales (mm) | 1420*780*1970 | 1390*740*1720 | ||||
| [H*I]Dimensions dépliées du balancier (mm) | 1702*1914 | 605*1445 | ||||
| Occupation de la plate-forme | 1 | |||||
| Garde au sol (centre) (m) | 0.05 | |||||
| [D]Empattement (m) | 1.29 | 1.27 | ||||
| Moteur électrique d'entraînement (V/KW) | 220/1.1 | |||||
| Vitesse de levage (m/min) | 3-5 | |||||
| Pneus (cm) | 20 | |||||
| Poids (kg) | 340 | 360 | 380 | 420 | 360 | |
Schéma
Caractéristiques

Pneus solides

Dispositif de mise à niveau

Panneau de contrôle

Bouton d'arrêt d'urgence à simple pression

Pattes d'outrigger de type insert

Bouton de descente d'urgence
Contactez-nous pour obtenir un devis gratuit